
Проектирование, строительство, отделка от экспертов своего дела в Воронеже и области от Ненахова Андрея


Обсудить строительство этого дома
Подготовим актуальный расчёт стоимости строительства под ваш участок и поможем подобрать оптимальную комплектацию дома.
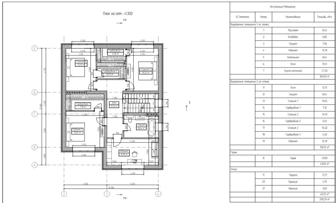
Габариты
Плюс гараж 50 м2
Общая площадь с террасами и балконами (при наличии)
Площадь санузлов
Площадь террас
Чистовая высота потолков внутри
Санузлов
Этажей
Проект / портфолио / на продажу
Технология
Подходит для семьи из 3–4 человек
Комфортен для участка от 6 соток
Отличный вариант для постоянного проживания
Рациональная площадь и экономичный бюджет строительства

Актуализируем смету строительства под ваш участок

Обсудим возможные изменения планировки

Подберём оптимальную комплектацию дома

Ответим на вопросы по срокам и этапам строительства
Оставьте заявку и мы поможем подготовиться к строительству этого дома.
Вы сможете:
• Актуализировать смету строительства под ваш участок
• Обсудить возможные изменения планировки
• Подобрать оптимальную комплектацию дома
• Получить консультацию по срокам и этапам строительства
Свяжемся с вами и обсудим проект в удобном формате
+ репортажи с объектов и полезные советы
Подписывайтесь, чтобы не потерять и вдохновляться

Основатель СК ЭкспертСтрой
expertstroi1@mail.ru

ИП Ненахов Андрей Борисович
ИНН 366605817927
Воронеж, Ломоносова 114/5