
Проектирование, строительство, отделка от экспертов своего дела в Воронеже и области от Ненахова Андрея

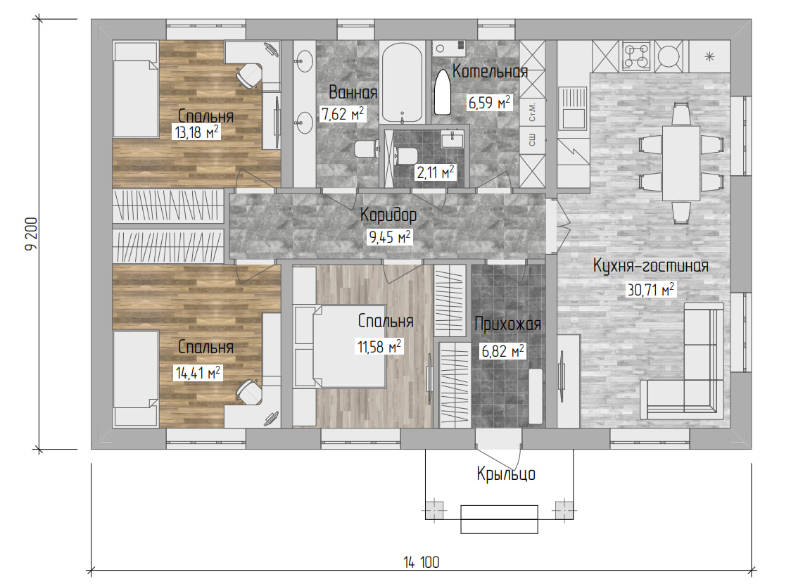
Одноэтажный дом с просторной кухней-гостиной 30,71 м2 и тремя изолированными спальнями 14,41 м2, 13,18 м2 и 11,58 м2. В доме предусмотрены большая ванная 7,62 м2, отдельный санузел 2,11 м2, котельная 6,59 м2 и удобная прихожая 6,82 м2. Планировка чётко разделяет общую и приватную зоны, обеспечивая комфорт для семьи из 3–5 человек.

Обсудить строительство этого дома
Подготовим актуальный расчёт стоимости строительства под ваш участок и поможем подобрать оптимальную комплектацию дома.
Габариты
Общая площадь с террасами и балконами (при наличии)
Площадь санузлов
Площадь террас
Чистовая высота потолков внутри
Санузлов
Этажей
Проект / портфолио / на продажу
Технология
Особенности
Планировка построена по классической схеме:
👉 Это даёт:
👉 Полноценная зона:
👉 Особенность:
Функции:
👉 Сильная сторона дома:
👉 Все комнаты:
👉 14,41 м2 — можно использовать как мастер-спальню
👉 Удобство:
👉 Важно:
👉 Это полноценный семейный дом без компромиссов по площади
Дом выполнен в современном классическом стиле с акцентом на надёжность и простоту.
👉 За счёт этого:
👉 Эффект:
👉 Практика:
👉 Даёт:
👉 Баланс:
Дом:
👉 Это формат, который:
"Этот дом — уже следующий уровень по сравнению с компактными решениями.
Здесь 120 м2 — и это ощущается. Мы сделали кухню-гостиную 30,71 м2, потому что именно там люди проводят большую часть времени.
Три спальни 14,41 м2, 13,18 м2 и 11,58 м2 — это не формальность, а реальные жилые комнаты, в которые нормально становится мебель, и остаётся пространство.
Отдельно отмечу ванную 7,62 м2 — это уже комфорт, а не минимальный набор.
И плюс котельная 6,59 м2 — всё оборудование убрано из жилых зон.
Главное здесь — баланс. Нет перегруженности, но и нет ощущения, что где-то сэкономили.
Это дом, который строят не «на попробовать», а чтобы жить."

Ненахов Андрей Борисович, Основатель СК ЭкспертСтрой
Подходит для семьи из 3–4 человек
Комфортен для участка от 6 соток
Отличный вариант для постоянного проживания
Рациональная площадь и экономичный бюджет строительства
Название комплектации
Краткое наполнение
Цена 1 м2
Цена
Коробка
Фундамент, стены и перегородки, фасад (при необходимости), перекрытия, лестница (если 2 этажа), кровля, крыльцо
Срок: 80 дней
41515 ₽
Наличка: 4276000 ₽
В ипотеку: по запросу
Подробное наполнение
Что входит
Коробка включает:
Выбирается индивидуально с учётом ряда факторов:
Основа на выбор:
Дополнительно:
Материал на выбор:
Тип кровли:
Дополнительно:
Теплый контур
Фундамент, стены и перегородки, фасад, перекрытия, лестница(если 2 этажа), кровля, крыльцо, окна, дверь,
Срок: 95 дней
44932 ₽
Наличка: 4628000 ₽
В ипотеку: по запросу
Подробное наполнение
Что входит
Включает:
Выбирается индивидуально с учётом ряда факторов:
Основа на выбор:
Дополнительно:
Материал на выбор:
Тип кровли:
Дополнительно:
Предчистовая
Фундамент, стены и перегородки, перекрытия, кровля, отмостка, окна, дверь, крыльцо, фасад, терраса, электрика, канализация, водоснабжение, вентиляция
Срок: 110 дней
59243 ₽
Наличка: 6102000 ₽
В ипотеку: по запросу
Подробное наполнение
Что входит
Включает:
Все, что входит в «Тёплый контур», плюс:
Высота чистового потолка — 2,75–3,25 м
Металлический вентилируемый софит
Механизированная штукатурка всех внутренних стен:
Отмостка:
Чистовая
Фундамент, стены и перегородки, перекрытия, кровля, подшив, отмостка, окна, дверь, крыльцо, фасад, терраса, электрика, канализация, водоснабжение, вентилляция, отопление, котельная, цоколь с отделкой, чистовая отделка стен, полов, потолка, чистовая сантехника, розетки и выключатели, осветительные приборы, внутреннике двери
Срок: 160 дней
83155 ₽
Наличка: 8565000 ₽
В ипотеку: по запросу
Подробное наполнение
Что входит
Все, что входит в «Предчистовая», плюс:

Актуализируем смету строительства под ваш участок

Обсудим возможные изменения планировки

Подберём оптимальную комплектацию дома

Ответим на вопросы по срокам и этапам строительства
Оставьте заявку и мы поможем подготовиться к строительству этого дома.
Вы сможете:
• Актуализировать смету строительства под ваш участок
• Обсудить возможные изменения планировки
• Подобрать оптимальную комплектацию дома
• Получить консультацию по срокам и этапам строительства
Свяжемся с вами и обсудим проект в удобном формате
Одноэтажный дом 95 м2 в современном стиле с террасой
Габариты: 9,3 на 12,3 м, общая площадь: 114.4, полезная площадь: 95 м2. Спален: 3 спальни
Фундамент, стены и перегородки, фасад (при необходимости), перекрытия, лестница (если 2 этажа), кровля, крыльцо за 3 967 000 ₽,
Фундамент, стены и перегородки, фасад, перекрытия, лестница(если 2 этажа), кровля, крыльцо, окна, дверь, за 4 294 000 ₽,
Фундамент, стены и перегородки, перекрытия, кровля, отмостка, окна, дверь, крыльцо, фасад, терраса, электрика, канализация, водоснабжение, вентиляция за 5 661 000 ₽,
Построенный одноэтажный дом 95 м2 в современном стиле с террасой
Габариты: 9,3 на 12,3 м, общая площадь: 114.4, полезная площадь: 95 м2. Спален: 3 спальни
Фундамент, стены и перегородки, фасад (при необходимости), перекрытия, лестница (если 2 этажа), кровля, крыльцо за 3 967 000 ₽,
Фундамент, стены и перегородки, фасад, перекрытия, лестница(если 2 этажа), кровля, крыльцо, окна, дверь, за 4 294 000 ₽,
Фундамент, стены и перегородки, перекрытия, кровля, отмостка, окна, дверь, крыльцо, фасад, терраса, электрика, канализация, водоснабжение, вентиляция за 5 661 000 ₽,
Одноэтажный кирпичный дом 99 м² с кухней-гостиной и выходом на террасу
Габариты: 10.4 на 12.8 м, общая площадь: 138, полезная площадь: 99 м2. Спален: 3 спальни
Фундамент, стены и перегородки, фасад (при необходимости), перекрытия, лестница (если 2 этажа), кровля, крыльцо за 4 134 000 ₽,
Фундамент, стены и перегородки, фасад, перекрытия, лестница(если 2 этажа), кровля, крыльцо, окна, дверь, за 4 475 000 ₽,
Фундамент, стены и перегородки, перекрытия, кровля, отмостка, окна, дверь, крыльцо, фасад, терраса, электрика, канализация, водоснабжение, вентиляция за 5 900 000 ₽,
+ репортажи с объектов и полезные советы
Подписывайтесь, чтобы не потерять и вдохновляться

Основатель СК ЭкспертСтрой
expertstroi1@mail.ru

ИП Ненахов Андрей Борисович
ИНН 366605817927
Воронеж, Ломоносова 114/5